Постановление об этом подписано мэром 12 декабря.

Постановление об этом подписано мэром 12 декабря.
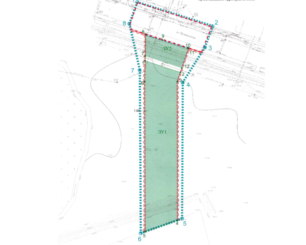
Документ касается строительства «отворотки» от основной дороги на улице Промышленной в Дзержинском районе Ярославля. Небольшой участок в 172 метра может появиться в районе дома №61.
Дорога местного значения будет двухполосной. Заявленная пропускная способность — 200 машин в час. Также запланировано появление двух тротуаров, ливневки и наружного освещения. Для строительства трассы потребуется перенести участок надземного газопровода.
Общественное обсуждение проекта продлится с 20 по 25 декабря. Оставить свои комментарии к нему можно на сайте мэрии, либо принести в городской департамент градостроительства.

По итогам регулярного чемпионата.
16.04.2026 в 08:44
Даже поговорка про «обещанное три года ждут» уже не работает.
16.04.2026 в 08:01
Правда, само благоустройство пока не завершено
16.04.2026 в 07:01
Изучив штатное расписание медучреждений, которое ему предоставили.
16.04.2026 в 06:01
Об этом сообщили в мэрии города.
15.04.2026 в 20:38
Движение машин через реку Вёкса снова открыто.
15.04.2026 в 19:31
Еще один погорелец спасен, пожарные вывели из огня 30 телят
15.04.2026 в 18:22
Закупка объявлена.
15.04.2026 в 18:01
Мероприятие состоится 30 мая.
15.04.2026 в 17:33
На улице Гоголя.
15.04.2026 в 17:01
К счастью, серьезных последствий удалось избежать.
15.04.2026 в 16:20
Команду покинул Никита Мирошниченко.
15.04.2026 в 16:06
Молодые люди работали на украинские спецслужбы.
15.04.2026 в 16:00
Оператор создал собственную платформу принятия решений в режиме реального времени для CVM (Customer Value Management) - MegaRITM, которая помогает подобрать для клиента продукт или услугу с учётом его привычек, потребностей и интересов.
15.04.2026 в 15:23
Об этом сообщил глава региона Михаил Евраев.
15.04.2026 в 14:47
По версии следствия, это были деньги, полученные адвокатом при посредничестве.
15.04.2026 в 14:26
Об этом сообщил глава округа Андрей Шатский.
15.04.2026 в 14:13
Об этом сообщили эксперты портала Выберу.ру, рассмотрев продукты российских банков из Топ-50 по размерам кредитных портфелей (на 01.03.2026 года).
15.04.2026 в 14:05
Он тот же, что и по первому контракту.
15.04.2026 в 13:48
В мэрии уже придумали как компенсировать эти доходы.
15.04.2026 в 12:08
Приговор по уголовному делу вынес Гаврилов-Ямский районный суд.
15.04.2026 в 12:03
Фото перекрытого мостового перехода публикует глава округа Андрей Шатский.
15.04.2026 в 11:56
До 23 часов.
15.04.2026 в 11:41
Их упомянул в своем отчете заместитель начальника полиции по охране общественного порядка УМВД по региону Михаил Бугрецов.
15.04.2026 в 11:15
Хозяева которой не платили и не пускали проверяющих.
15.04.2026 в 11:12
Об этом на заседании муниципалитета заявил глава города Артём Молчанов.
15.04.2026 в 10:59
Поединок завершился со счетом 6:1 в пользу ярославцев.
15.04.2026 в 10:34
Ранее власти города анонсировали снос.
15.04.2026 в 10:15
Уже на этой неделе.
15.04.2026 в 09:47